Netapp corporate
retail store, 2.0
YEAR: 2019
CLIENT: NETAPP
LOCATION: SUNNYVALE, CALIFORNIA
SIZE: 779 SQ FT
ROLE: INTERIOR ARCHITECT
_____
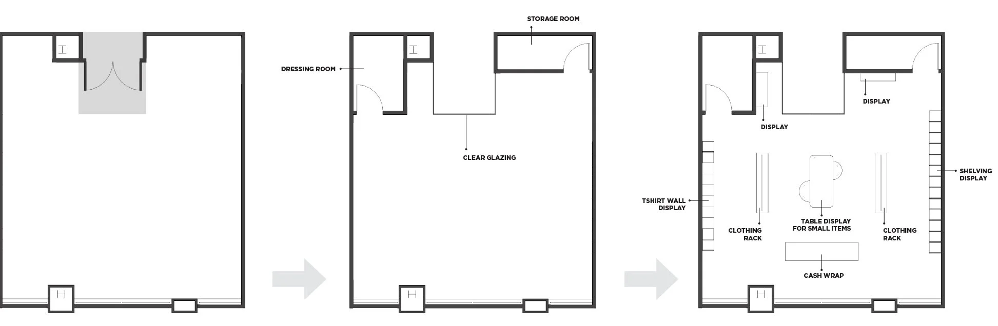
CHALLENGE
I previously designed the NetApp corporate retail store in 2015, as seen in my portfolio. Since then, the store had to be relocated to another building. For this new space, NetApp asked for a completely new take on the previously successful interior which was filled with rich dark walnut fixtures and playful flooring of wood LVT and hexagons. In addition to wanting a new interior design, the new store would be located in a building with an already strong interior design, so this new space would have to feel like an extension of that design language, while still having its own unique look and feel.
THE SOLUTION
To make the space feel like an extension of the existing space, design elements were pulled upon like the polished concrete floors, the open ceiling, floating walls and streamlined lighting elements. The space itself was used as a lab and conference room, so the flooring and ceiling tiles would all have to be removed to give it more of a commercial retail feel.
One problem to solve was the entry into the space. The existing double doors were rather lackluster. In order to open up the first touchpoint upon arriving at the store, the entry is pushed into the store and surrounded by floor to ceiling glass panels.
Overall, the material selection connects to the rest of the spaces, along with a few unexpected elements to make the space stand out. The black metal and wood fixtures are inspired by the materiality of the other areas within the building. The cement flooring is bold and graphic in its black and white color palette and the terrazzo countertops have a unique color story which helps to pull all of the colors in the space together.
